Más que un conjunto de casas, Pueblo Colibrí es una comunidad consciente donde se fomenta la colaboración, el uso eficiente de los recursos y una conexión auténtica con el entorno.
Más que un conjunto de casas, Pueblo Colibrí es una comunidad consciente donde se fomenta la colaboración, el uso eficiente de los recursos y una conexión auténtica con el entorno.
Un proyecto único de 36 casas diseñadas bajo el sello inconfundible de Martín Gómez Arquitectos. Un uso del territorio consciente, amable y regenerativo, tanto ecológica como socialmente.
En pleno corazón de La Barra, a solo 400 m del icónico puente ondulante y al inicio del Camino de Los Flamencos.
Pueblo Colibrí propone viviendas hermanadas, pensadas especialmente para quienes buscan un retorno a lo auténtico, a lo íntimo, a lo natural.
Una experiencia auténtica de vida en el pueblo, con rincones acogedores para desayunar y relajarse, y un espacio de trabajo abierto tanto a huéspedes como a vecinos.
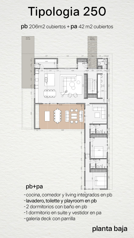
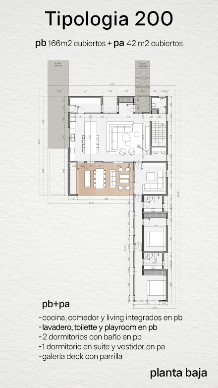
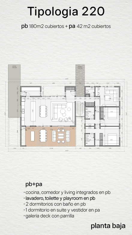
Lotes amplios de 1.000 a 1.500 m², y viviendas de entre 120 y 250 m² cada una integrada de forma armónica con el entorno.
Con un criterio estético unificado, el reconocido arquitecto Martín Gómez le da coherencia y belleza a esta propuesta original.
Un olivar ofrece aceite a todo el barrio.
Espacios comunes diseñados para el encuentro gastronómico, la actividad física, el relax y el coworking a cielo abierto, dan vida a una experiencia que abraza lo natural, lo sustentable y lo natural.